HOUSE T

April 2022
Location: Vienna, Austria
Principal use: single family home
Total floor area: 390 m2
Site area: 520 m2

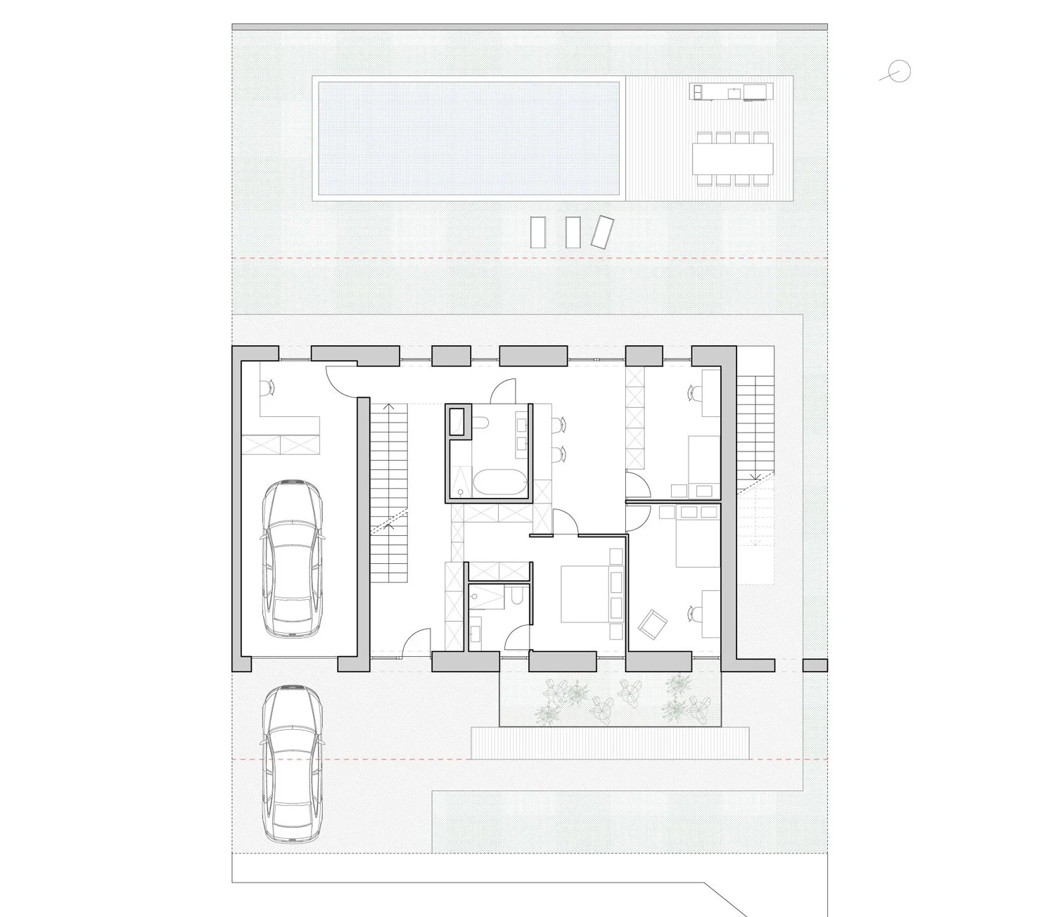
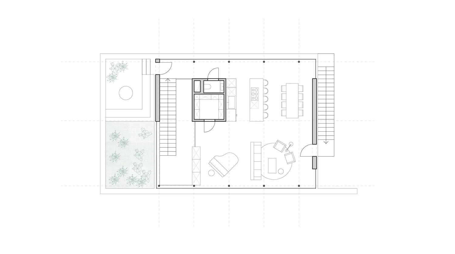
Set back from the street, the house presents a three-tiered elevation: plinth, glass, and gable. The shared areas occupy the upper floor and are left as open as possible. Large sliding glass panels open to the garden and street, with the neighboring park beyond.

Design team:
Chieh-shu Tzou
Gregorio S. Lubroth
Ondřej Mráz
Katia Simas

Set back from the street, the house presents a three-tiered elevation: plinth, glass, and gable. The shared areas occupy the upper floor and are left as open as possible. Large sliding glass panels open to the garden and street, with the neighboring park beyond. The bedrooms and study are on the ground floor with direct access to the back garden. The basement houses and office, sauna, and small gym.

Back to Buildings
Next
Next

House in the Woods