WRAPSTARS 1060
September 2019
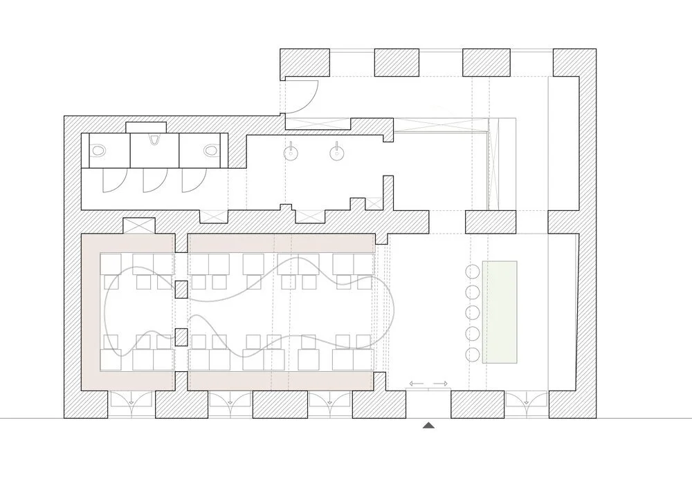
Location: Vienna, Austria
Principal use: Restaurant
Total floor area: 130 m2
Number of stories: 1
Design team:
Chieh-shu Tzou
Gregorio S. Lubroth
Deniz Önengüt
September 2019
Location: Vienna, Austria
Principal use: Restaurant
Total floor area: 130 m2
Number of stories: 1
Design team:
Chieh-shu Tzou
Gregorio S. Lubroth
Deniz Önengüt