KIGA S
December 2009
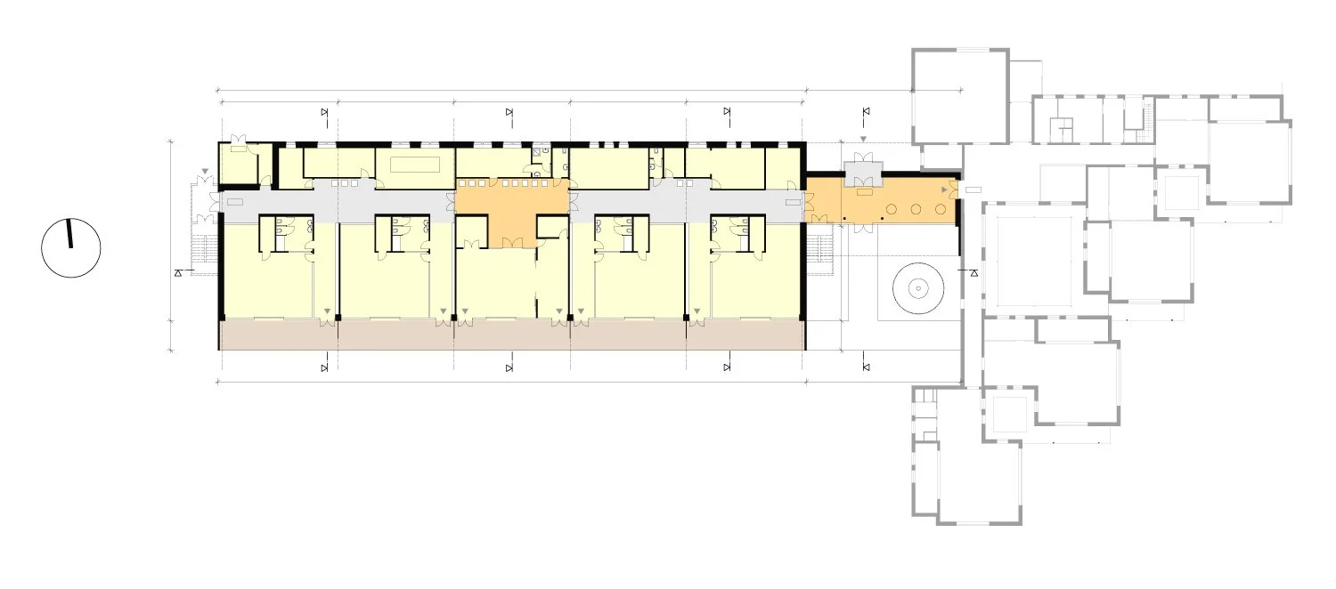
Location: Schwechat, Austria
Principal use: Kindergarten
Total floor area: 2000 m2
Number of stories: 1
Design team:
Chieh-shu Tzou
Gregorio S. Lubroth
December 2009
Location: Schwechat, Austria
Principal use: Kindergarten
Total floor area: 2000 m2
Number of stories: 1
Design team:
Chieh-shu Tzou
Gregorio S. Lubroth